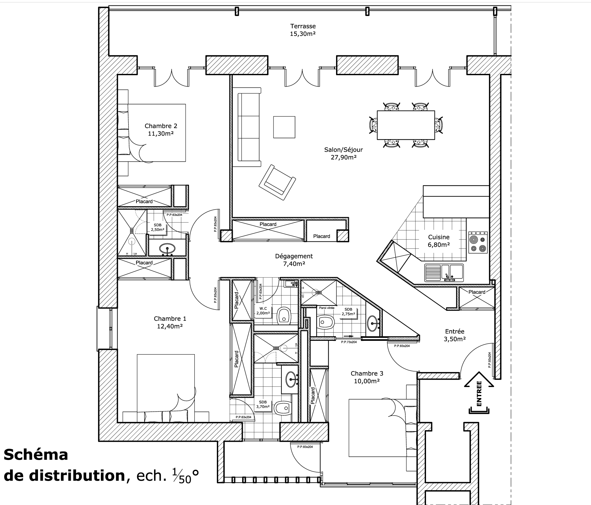
Projet de transformation d’un appartement, Ajaccio, Corse-du-Sud Étude de projet pour la transformation d’un appartement afin d’y intégrer une chambre supplémentaire. Transformation d’un appartement à Ajaccio Transformation d’un appartement à Ajaccio Transformation d’un appartement à Ajaccio Transformation d’un appartement à Ajaccio